TEL 0942-35-1111
TEL 0942-35-1111
物件詳細
お問い合わせNo:5851
情報更新日:2025/11/15
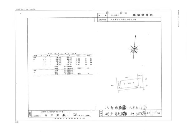
| 所在地 | 福岡県久留米市宮ノ陣町大杜299-2、299-3、300-2 | ||||
|---|---|---|---|---|---|
| 価格 | 1,250万円 | 面積 | 334㎡(101.04坪) | 坪単価 | 12.37万円 |
| 内観画像 サムネイル画像にマウスを置くと拡大画像が表示します。 |
|---|
|
|
| 交通 | 甘木線学校前駅駅 徒歩8分 | ||
|---|---|---|---|
| 接道状況等 | 一方道路、東側 公道 幅員約4.5m接面13.04m | ||
| 建ぺい率 | - | 容積率 | - |
| 地目 | 畑 | 土地権利 | 所有権 |
| 都市計画 | 市街化調整区域 | 用途地域 | - |
| 現況 | 更地 | 引渡日 条件 |
即時 現況渡し |
| 設備 | - | ||
| こだわり条件 | 100坪以上、建築条件なし | ||
| 小学校 | 宮ノ陣小学校(300m) | 中学校 | 宮ノ陣中学校(450m) |
| 取引態様 | 仲介 | 建築条件 | 無し |
広々とした土地で住宅用地に最適です♪告知事項有り